Birdies moving to expanded Crossroads shop with support from KCMO’s Open Doors!
March 27, 2026 | Nikki Overfelt Chifalu
Birdies — the beloved, inclusive lingerie boutique in the West Crossroads — is expanding its nest, shared co-owners Peregrine Honig and Alexis Burggrabe.
Thanks in part to an Open Doors! Program grant, Birdies is preparing a move down the block to the corner of 18th and Baltimore and expanding its retail space from 600 square feet to 2,000.

Birdies new storefront at 101 W. 18th St., the former Bizz and Wheezy’s Confections; photo by Nikki Overfelt Chifalu, Startland News
“It’s been just epically everything that we have been manifesting for five years,” Honig said of the opportunity at 101 W. 18th St., the former Bizz and Wheezy’s Confections. “The light, the location, the size.”
“It’s just nice to have breathing room now,” she added. “We can move things around and we have enough inventory to really build the space in a very refined and elegant way.”
Honig started Birdies — known for its focus on independent, woman-owned brands from around the world — in 2003 as a 100-square-foot art installation in the West Crossroads before expanding into the space next door in 2008. Since then, it has been featured in Elle, Vogue, Women’s Wear Daily, Vice, and The New York Times and was named Best Lingerie Shop in North America by Intima in 2023.
“The thing that Alexis and I are working toward is making sure that people know that we stayed in the neighborhood,” Honig explained, “because West 18th Street is so much a part of our identity. And it’s why it took us so long to find a place to move because I would go to different parts of the city, and we would look at different places, and this just was perfect timing.”
The co-owners of Birdies learned March 15 that their applications for the Open Doors! Program — crafted through a partnership between the City of Kansas City, Missouri’s KC BizCare office and the Economic Development Corporation of Kansas City (EDCKC) to activate underutilized or vacant commercial spaces in the downtown area during the coming FIFA World Cup — had been accepted. They’re now scrambling to get everything at the new space ready for a soft opening May 1.
“I think the goal of Open Doors! was to activate spaces, and we are the embodiment of what they want, physically — pun intended,” Honig noted. “We’re doing something that is going to lead people down West 18th Street and it’s a great connection between 18th and Vine. I feel like we can all be working so much better to connect east and west in the city, just conceptually.”

A peek inside the under-renovation Birdies space at 101 W. 18th St., the former Bizz and Wheezy’s Confections; photo by Nikki Overfelt Chifalu, Startland News
The boutique’s new location — which has been repainted and has a new hexagon-tiled floor — has been vacant since Bizz and Wheezy’s moved out at the end of 2025.
“I’ve always loved the space,” Honig said. “I loved it when it was Habitat Shoes. Once the windows are exposed, it’s just going to be ridiculously beautiful.”
In its new location, Birdies — which offers inclusive sizes, creating a space where customers feel comfortable, confident, and seen — will have five dressing rooms (up from two), three of which will be ADA compliant.
“We are very specialized,” Honig noted. “We go from a 28A bra size to a 44I, which is why we’re still open. And that involves trying things on.”
“We’re able to accommodate all these different body types,” she added, “and not just like it’s a hospital. We have gorgeous things coming in from all these independent designers.”

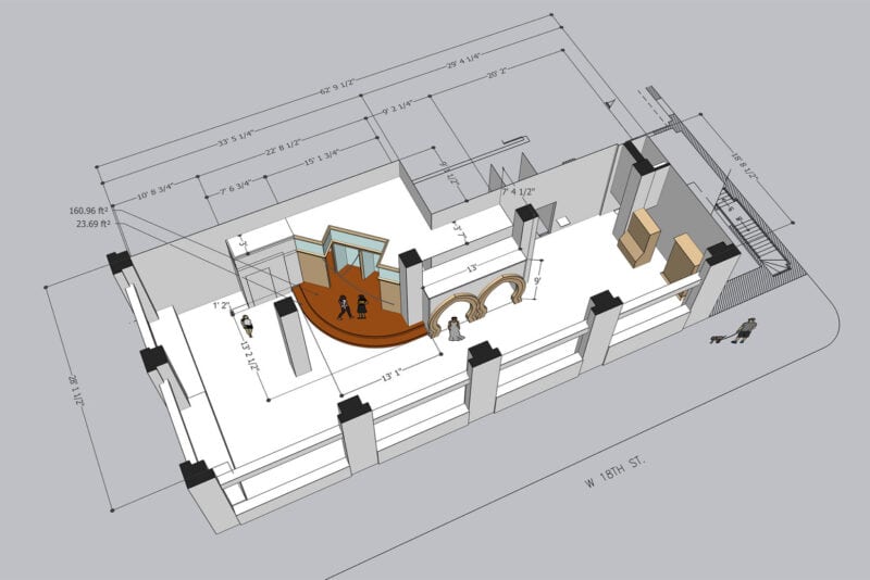
A rendering of the new Birdies space at 101 W. 18th St.; courtesy image
Everything in the new space will be on wheels, so that employees can easily move elements around to accommodate special events, the co-owners shared.
“Space is power, that’s the truth of it,” Honig explained. “The more space you have, the more potential there is for different things. I’m really looking forward to more creative projects in the new space.”

Crowded windows at Birdies current location at 116 W 18th St. show a store packed with inventory; photo by Nikki Overfelt Chifalu, Startland News
“We’re trying to get back to what Birdies was five years ago before our space got so packed with stuff that we could no longer host events as easily,” Burggrabe continued. “We used to have theater — which sounds crazy, but we did — and concerts and poetry readings. But it just got so congested in there that it became really hard to host that kind of thing. Moving is going to give us the opportunity to return to that.”
Birdies’ first event at the new location will be its soft opening May 1, coinciding with First Fridays in the Crossroads. Honig said they plan on having an installation with seven monochromatic dancers in the window. Although the doors will be closed to the store, they are encouraging the audience to also dress up in monochromatic colors and dance along. Monochromatic treats from Yoli will be provided.
“I’ve been calling it a rainbow smoke show,” she added. “I’m really looking forward to it because that’s what we did when we expanded before. We had people dancing in the windows in 2008 with the doors locked. So it’s fun. People take pictures. They feel like they’re part of it.”
During the World Cup, Honig noted, the boutique will be partnering with neighbor Cafe Corazon, plus participating in the Crossroads Night Market, which is planned 5 p.m. to 11 p.m. during the last three weeks in June and the first two weeks in July (starting June 11).
“With an international soccer tournament coming into our city, the best thing that can happen is we’re busy every day with people from all over the place.” she continued. “The worst thing is it’s so congested that we just sit and wait. It’s got to be something in between those two things.”
“One of the reasons that it’s so great to stay in the block is that we’re already — as a business — being supported by the neighborhood,” Burggrabe added. “We get to take advantage of that.”











